Nari-torh-2019-main

Versatile Modern Farmhouse

Pool & Guest Suite Overlook Barton Creek

This 1990s builder-grade home received initial upgrades when its owners improved the master bath and full bath soon after moving in. After they lived in the home for a while they became dissatisfied with its fragmented layout and outdated style. The kitchen was cut off from the living space and had been renovated in the parlance of the preceding decade: ’90s contemporary eclectic. It was time for both an improvement in style and function in these critical spaces.

Kitchen-dining-torh-19
RD2 1

The kitchen was opened up to the living spaces

and redone in a modern farmhouse style, contrasting warm woods with cool metals, set in clean geometries. Gone is the choppiness of the previous spaces with their irregular polygons and constricted zones.

RD2 8
RD2 10
RD2 14
Nari-torh-19-pool-deck

The home was built on very steep grade

making for dicey outdoor cooking spaces. We improved outdoor living dramatically by building out an infinity pool and pool deck along with dedicated grill zone that ties in perfectly to the home. What was once a steep falloff into the wooded creek below is now an elevated platform for relaxation. We made improvements to the exterior façade and created terraced landscaping as well.

RD2 34
RD2 33

Solar

The home takes advantage of significant solar exposure with an array of solar panels.

RD2 29

Guest House

A new versatile guesthouse plays various roles, from providing flexible cabana space off the pool, serving as a guesthouse or homework studio, and creating an opportunity for an additional garage.

Bar-elevation

While lacking a full kitchen, the guest house provides a full bar with sink, beverage fridge, and plenty of relaxation and entertainment options.

RD2 22
RD2 21

A stair leads from the daylit living space

to a comfy bedroom sanctuary. The room is carved from the hillside, half-underground, cool and quiet. With it's own full bath! A refuge.

RD2 20
RD2 26
RD2 25

Guest house or in-law suite?

Teenage hangout? The possibilities are endless.

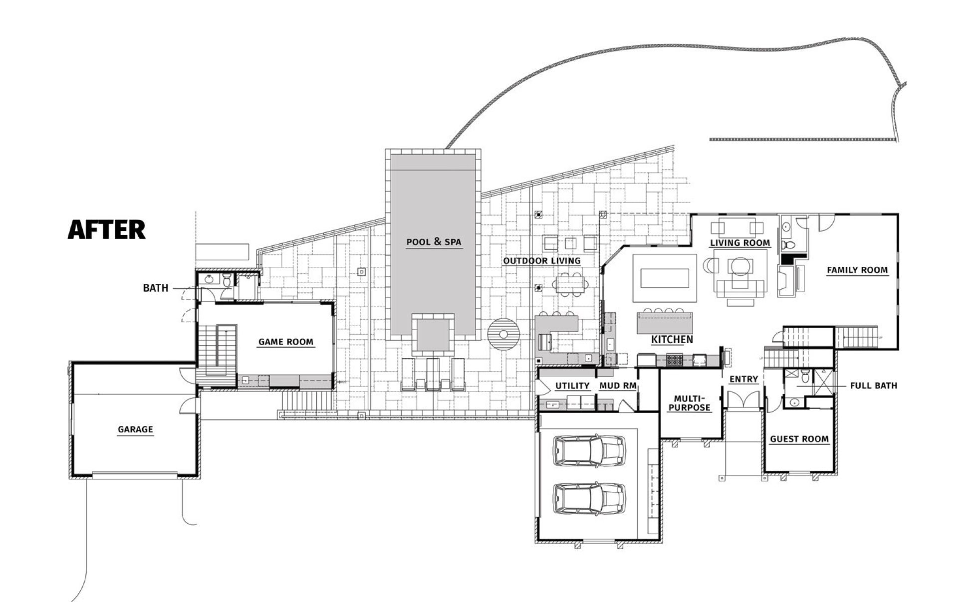
Process-graphics-before
Process-graphics-after
RD2 13

Next Project Open & Inviting In Westlake

Exchanging 80s awkwardness for contemporary ease