Season For Caring Returns

Improvements for the Trujillo Family

By Ryan Davis

Posted on February 07, 2024
Pic3 trujillo family blog

After taking a break during the uncertainties of the pandemic, CG&S is so excited to be back with the Austin American-Statesman’s Season for Caring program, that provides money and services to those in need in our community. The Statesman receives nominations for families that need aid—in this case by the non-profit Wonders & Worries—and then we select a candidate based on how best we can help. This year we have signed up with the Trujillo family, who require better accessibility to their home, along with other spot improvements.

Pic5 measuring blog

The major component is replacing their cumbersome double set of steps to their entrance with a properly designed ramp that will run alongside their residence complemented by a new covered porch. The design is a little tricky due to tight space constraints, and the project will need to comply with permitting and HOA requirements, but we are confident that in the end we’ll be able to find a workable solution.

Existing floor and elevation

Existing floor plan & elevation. Note the very little space between the two homes.

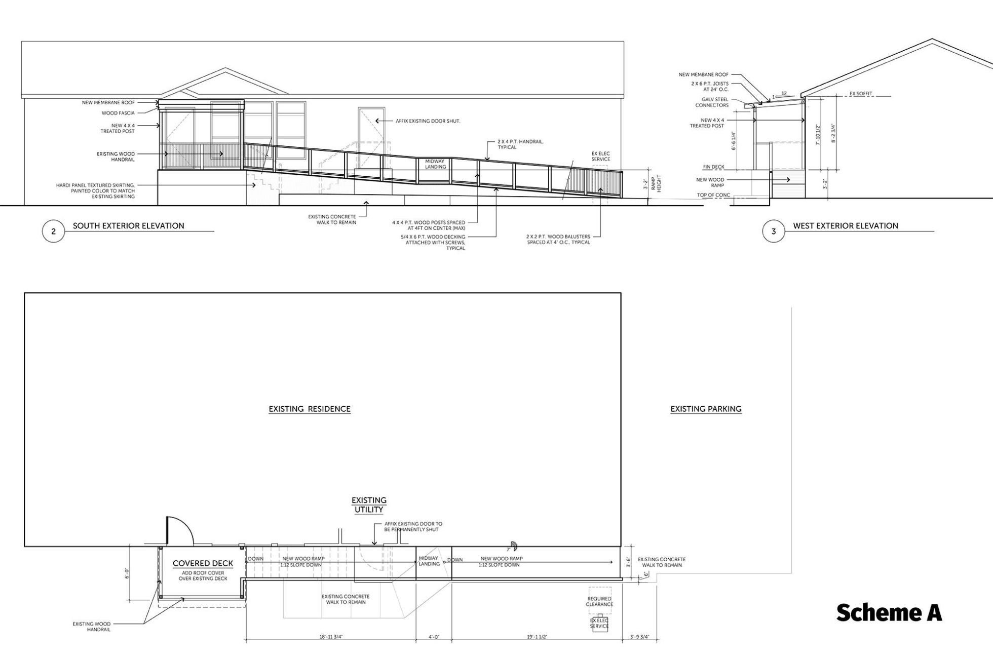
Shceme A

Our first scheme envisions a long ramp with landing along the full length of the home. It also shows a new covered porch addition, where previously there was no cover from the elements. But it requires that one of the front doors to be fixed shut. This design is not yet approved for construction.

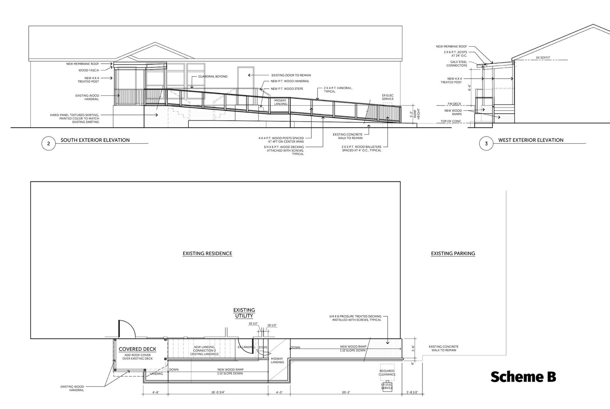
Scheme B trujillo

Scheme B preserves both entrances by skirting the ramp around the existing structure and connecting the two doors by bridging the gap between the existing stairs. This landing then steps down to meet the ramp. This scheme is not yet approved for construction.

The Trujillos have been trying to build this ramp for several years. Betty Patina-Trujillo has MS, her 14 year old son Margarito has scoliosis and heart conditions, and Betty’s husband Ruben Trujillo is legally blind. Medicaid cannot provide sufficient funds to complete the project. In addition to accessibility, their home is in need of repairs. With the help of the American-Statesman’s program many of the problems with the home can be solved in the short term. We are so happy to offer our expertise in construction and repair in the tradition of the charitable ramp building work that CG&S founder Clarence Guerrero performed throughout his career.

Seasons for Caring has struggled a bit since the pandemic and rising cost of living and could use support; if you have a desire to help please consider checking it out—they do such crucial work!

Season for Caring

Wonders & Worries

Family portrait by Aaron Martinez; exterior shot by Nicole Villapando, both of the Austin American-Statesman

Read Next "Welcome Home: Holiday Special"

Genie Norris Walks Us Through Her Holiday Decorating Rituals